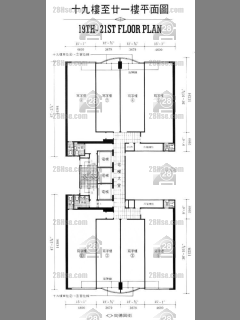
兴富中心
|
兴富中心 低层 4室
建863尺 @ $5,794
2025-04-23
注册处成交
$500 万元
